Dettaglio Scheda
- Tipologia: Bi/Trifamiliare
- Area: 210 m2
- Fondi
- Camere 3
- Bagni 3
- Condividi su Facebook
Bifamiliare da rifinire zona querce
Immobiliare il Castello propone in vendita interessate porzione di bifamiliare da rifinire.
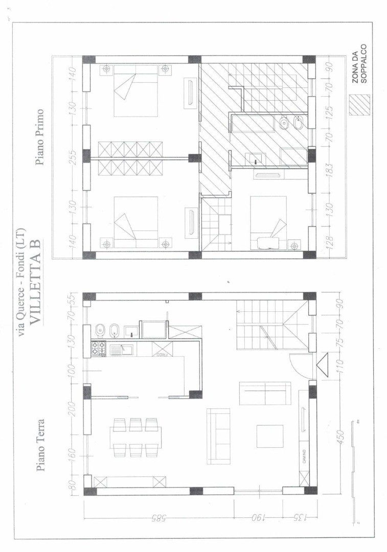
La struttura di mq circa 210 è così composta:
- Piano seminterrato attualmente come unico ambiente;
- Piano terra predisposto con sala cucina open space con doppio affaccio su giardino di pertinenza esclusiva per poter comodamente mangiare all'aperto e bagno;
- Piano primo con due camere matrimoniali, una singola, piccolo ripostiglio e data l'altezza importante è possibile creare un soppalco di circa 30 mq a discrezione dell'acquirente.
Questa bifamiliare offre l'opportunità di poter personalizzare l'interno e predisporla a proprio piacimento.
Inoltre offre uno spazio esterno dove poter godere della bellezza del paesaggio con possibilità di inserire una tettoia per auto.
Ottima esposizione al sole.
Possibilità di consegna "chiavi in mano" al prezzo di € 410.000,00.
Ulteriori informazioni in agenzia.
Maggiori info
- Codice: Bif 33
- Tipologia: Bi/Trifamiliare
- Superficie: 210 mq
- Vani: Più di 5
- Piano: Non definito
- Giardino: Si
- Balcone: Si
- Ascensore: Non definito
- Terrazzo: Non definito
- Riscaldamento: Non definito
- Climatizzatore: Non definito
- Classe energetica: In Richiesta
- Stato: Da ristrutturare



